Habert des Ayes : les vestiges sont préservés

Le habert des Ayes au pied de la dent de Crolles © Patrimoine culturel-CD38
Le habert des Ayes au pied de la dent de Crolles © Patrimoine culturel-CD38

Bien que modestes, les vestiges du habert des Ayes, aujourd’hui situé dans l’Espace Naturel Sensible du Col du Coq et dans la Réserve naturelle des Hauts de Chartreuse, témoignent, comme le habert de Pravouta, de l’histoire millénaire des alpages de Chartreuse, du rôle majeur des ordres monastiques dans le développement de l’économie agro-sylvo-pastorale cartusienne depuis le Moyen Âge et d’un mode d’exploitation dédié à la production fromagère qui a perduré jusqu’au tournant des années 1960.

Photogravure, habert des Ayes © Patrimoine culturel-CD38 don Alain Thorand
Photogravure, habert des Ayes © Patrimoine culturel-CD38 don Alain Thorand

Le habert des Ayes, élément d'un vaste domaine monastique

L’histoire du habert « de la montagne d’Arguille » est étroitement liée à celle de l’abbaye des Ayes, fondée vers 1142 par Marguerite de Bourgogne à la mort de son époux le dauphin Guigues IV. Elle devient la première abbesse de ce vaste domaine, qui s’étend progressivement, au fil des donations successives, de la vallée de l’Isère, où l’abbaye s’implante au hameau des Ayes (Crolles), jusqu’aux alpages de la « montagne d’Arguille », sur les flancs de la Dent de Crolles (appelée « Som » jusqu’à la fin du XIXe siècle), en passant par le hameau du Baure à St Pancrasse (plateau des Petites Roches), où était situé son siège historique.

Ainsi, se structure au fil des siècles un vaste domaine agro-sylvo-pastoral : vignes, vergers, cultures de céréales et légumes, bois, prairies et alpages sont exploités par un ou plusieurs fermiers, avec lesquelles l’abbaye passe des contrats de location (ou « arrentements ») de huit ans, particulièrement détaillés qui, lorsqu’ils ont été conservés, constituent une « mine » d’informations pour les historiens.

On y lit que le fermier, qui gère les biens de l’abbaye, est redevable d’un loyer en monnaie sonnante et trébuchante et surtout en nature, composée d’une grande part de la production du domaine dont il a la charge : le contrat précise les quantités de grains, légumes, « truffes » (pommes de terre), noix, fruits, vin, lait, beurre, fromages de différentes sortes, mais aussi volailles, veaux et cochons, etc... que le fermier doit remettre à l’abbaye à telle ou telle période de l’année. Il élève également les troupeaux de vaches ou brebis, qu’il monte en alpage en été ; il exploite la forêt pour en tirer du bois de menuiserie ou de chauffage, fournit l’abbaye en paille, fait tourner les moulins, veille au curage des fossés d’irrigation, etc... Enfin, il est chargé d’entretenir les bâtiments qu’il occupe, lui ou ses employés et leurs familles : ferme et dépendances, granges, haberts…

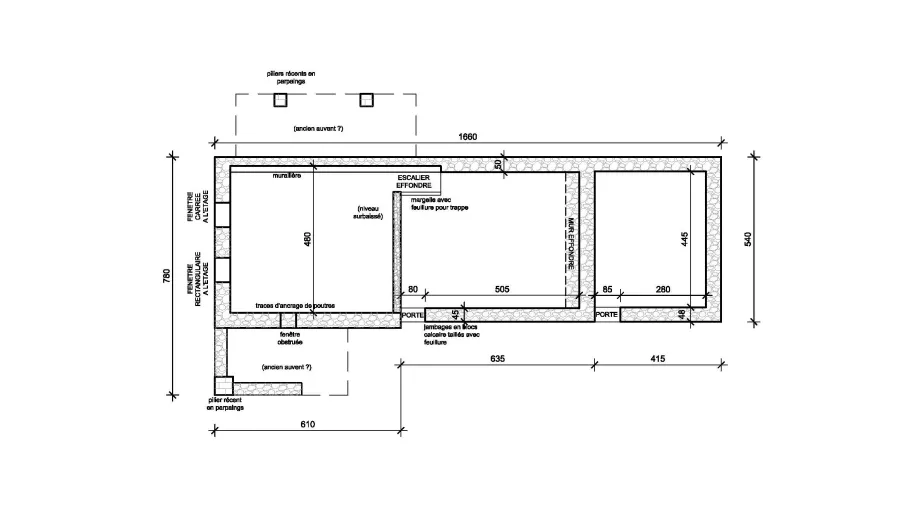
Plan du habert des Ayes, étude patrimoniale et historique, 2019 © Patrimoine culturel-CD38
Plan du habert des Ayes, étude patrimoniale et historique, 2019 © Patrimoine culturel-CD38

Le habert des Ayes est décrit avec précision dans le bail de location que passe en novembre 1745, devant notaire, l’abbesse des Ayes avec les fermiers Pierre Roux et Pierre Chatain dit Nallet, concernant le « domaine des Ayes, habert du Devais et montagne d’Arguille ». Le habert se compose d’un logis (correspondant aux vestiges visibles aujourd’hui), d’une vaste grange (aujourd’hui disparue), de petites dépendances (disparues) et d’un jardin clôturé. La maison, comporte pièce principale, chambre, laiterie et cave à fromages. Un inventaire dresse la liste de tout le mobilier et de son état d’usure, des ferrures des portes aux bancs, seaux, bois de lit, etc… jusqu’aux ustensiles servant à la fabrication du fromage.

En 1791, toutes les possessions de l’Abbaye sont vendues comme biens nationaux et partagées entre plusieurs propriétaires privés.

Habert des Ayes au XVIIIe siècle d'après la description faite dans le "Chargé" du 2 novembre 1745. ADI 12H20 © Archives départementales
Habert des Ayes au XVIIIe siècle d'après la description faite dans le "Chargé" du 2 novembre 1745. ADI 12H20 © Archives départementales

Les baux et inventaires du XVIIIe siècle nous révèlent cependant une image finalement très proche de celle que l’on connait du habert dans la première moitié du XXe siècle à partir des témoignages, des photos anciennes et des vestiges conservés. Ainsi, le mode d’exploitation pastoral, l’organisation intérieure du habert et la technique de fabrication du fromage ont perduré au habert des Ayes (comme à Pravouta) jusqu’à la dernière saison des vaches laitières et de la fabrication fromagère en alpage.

Le habert au XXe siècle

Jusqu’en 1959, l’alpage des Ayes accueille des vaches laitières, ainsi que des chèvres, et quelques porcs, engraissés au petit lait. Le habert comprend deux bâtiments, jadis couverts en essendoles (tuiles de bois), puis en tôle :

La maison et fromagerie, implantée perpendiculairement à la pente et construite en maçonnerie de pierres hourdées au mortier de chaux. Les « montagnards » y vivent de début juin à mi-septembre, pour assurer la conduite des bêtes, la traite et la fabrication du fromage.

Le Père Fournier adossé à la porte du Habert des Ayes, 1964 © J.C Frachon, Spéléoclub du Jura
Le Père Fournier adossé à la porte du Habert des Ayes, 1964 © J.C Frachon, Spéléoclub du Jura

La halle, aujourd’hui disparue, était située devant le habert, sur un replat encore visible. Sa structure était en bois et les parois en planches. Elle servait d’abri pour les bêtes et pouvait-être utilisée pour la traite.

A partir de 1960, les Ayes sont devenues un alpage ovin. Adossé à la porte du habert (dont on reconnait les pierres du piédroit sur l'image ci-dessus), le « père Fournier », qui avait une jambe de bois, gérait un troupeau de 5 à 600 brebis avec son aide-berger. 

Préserver et stabiliser les vestiges du habert pour raconter son histoire

En 2004, le Département de l'Isère acquiert la ruine des Ayes ainsi que les parcelles alentours et l'espace naturel sensible du Col du Coq - Pravouta est créé. Enfin, à l’automne 2020, les vestiges du habert, qui menaçaient de s’effondrer, ont été sécurisés et stabilisés.

Intervenir sur des ruines nécessite un savoir-faire spécifique, car l’intervention se doit d’être à la fois discrète, durable et respectueuse des techniques constructives d’origine.

Ces travaux de mise en sécurité et de nettoyage ont été confiés à une entreprise de maçonnerie spécialisée dans les travaux de restauration du bâti ancien, qui est  intervenu avec beaucoup de finesse pour préserver et stabiliser tout ce qui pouvait l’être. Ils ont consisté en :

  • Rejointoyer la maçonnerie autant que possible au mortier de chaux et protéger les arases
  • Dégager la descente de cave pour rendre plus lisible le bâtiment
  • Conserver et regrouper les pierres de construction dispersées à l’intérieur du bâtiment, favorisant du même coup un milieu favorable aux reptiles
  • Evacuation des tôles, parpaings et autres matériaux rapportés
  • La réalisation prochaine d’un panneau d’interprétation pour rendre hommage aux hommes qui ont habité l’alpage pendant des siècles.
Habert des Ayes pendant les travaux de consolidation des ruines © Patrimoine culturel-CD38
Habert des Ayes pendant les travaux de consolidation des ruines © Patrimoine culturel-CD38
Habert des Ayes pendant les travaux de consolidation des ruines © Patrimoine culturel-CD38
Habert des Ayes pendant les travaux de consolidation des ruines © Patrimoine culturel-CD38
Le habert des Ayes après les travaux de consolidation des vestiges, octobre 2020 © Patrimoine culturel-CD38
Le habert des Ayes après les travaux de consolidation des vestiges, octobre 2020 © Patrimoine culturel-CD38

Les Ayes aujourd'hui

La ruine du habert des Ayes se situe au coeur de l’Espace Naturel Sensible du Col du Coq - Pravouta ainsi que dans le périmètre de la Réserve Naturelle Nationale des Haut de Chartreuse, créée en 1997. A l'occasion de votre visite, nous vous rappelons qu'il est essentiel de respecter la réglementation en vigueur, à savoir, la cueillette, le camping et les feux sont strictement interdits, ainsi que la présence des chiens, même tenus en laisse.

Aujourd’hui, un troupeau d’ovins pâture toute la montagne d’Arguille, du col du Coq à Pravouta et aux Ayes, sous la conduite d’un berger basé au Col du Coq.

Découvrez également l'exposition installée dans le habert de Pravouta qui rend hommage aux derniers "montagnards" qui exploitaient les alpages au milieu du XXe siècle : "Un instant dans la longue histoire des montagnards de Pravouta"

Troupeau d'ovins, secteur de Pravouta © Bertrand Bodin
Troupeau d'ovins, secteur de Pravouta © Bertrand Bodin